Your privacy is important to us. This website uses cookies to enhance user experience and to analyze performance and traffic on our website. By using this website, you acknowledge the real-time collection, storage, use, and disclosure of information on your device or provided by you (such as mouse movements and clicks). We may disclose such information about your use of our website with our social media, advertising and analytics partners. Visit our Privacy Policy and California Privacy Disclosure for more information on such sharing.

Log In

Our Brands

Helpful Tools

Search

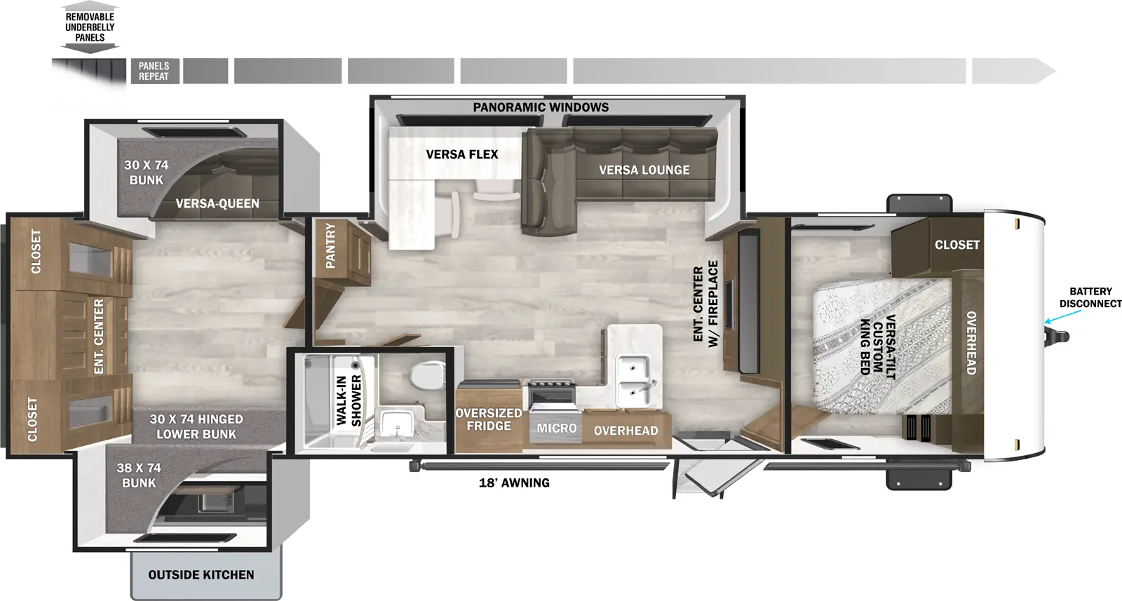
Explore 2026 Wildwood Travel Trailers 31KQBTS Floorplan

The 31KQBTS is the ultimate bunkhouse, with three total slide outs and an outside kitchen. This well-equipped travel trailer features oversized panoramic windows, the ever-popular U-dinette, which you can customize with the adjacent Versa-Lounge. The kitchen includes a 11 CU. FT. refrigerator and stovetop with oven and LED accents, plus cabinets for all your cooking essentials!

Hitch Weight
905 lb.
UVW
8,573 lb.
CCC
1,292 lb.
Exterior Length
36' 7"
Exterior Height
11' 5"
Exterior Width
96"
Fresh Water
39 gal.
Gray Water
40 gal.
Black Water
27 gal.
Awning Size
18'

31KQBTS Floorplan Wildwood Travel Trailers Features & Options

    • Retro/Metal Redesign
    • 4K Blade Lighting
    • JBL Speakers – Interior/Exterior
    • 4K Awning Blade Lighting
    • TFL Cabinet Doors
    • Heavy Duty Cabinet Hinges
    • Fold-Out Trash Can
    • Versa-Range (N/A 27RE, 28VIEW & 32RET)
    • Versa-Range Spice Rack (N/A 27RE, 28VIEW & 32RET)
    • Stylish Backsplash Update
    • Versa-Flex: Desk, Dinette & Chaise (Most Models)
    • Lock & Groove Shiplap Islands (where applicable)
    • Luminous Arched Radius Panels
    • Expanded Kitchen Window
    • Stylish Roller Shades
    • Elegant Curtain Rods and Curtains
    • Sleek Single Bowl Sink
    • Pet Step in Bedroom
    • Backlit Arched Radius Bathroom Mirror
    • Revamped Bedroom Layout
    • Enhanced Floating Shelves
    • TFL Black Walnut Entertainment Shelf
    • Pre-Installed TV Brackets (Living Area & Exterior)
    • Versa Furniture
    • Stow N Go Storage Solution
    • MORryde™ StepAbove Triple Step (Entry Door) (N/A 36VBDS)
    • TFL Cabinet Doors
    • Roof Mount Solar Prep
    • Adjustable Textured Roller Shades
    • Backlit Radius Bathroom Mirror
    • Built-In Laundry Hamper in Bedroom
    • Back-Up Camera Prep
    • JBL Stereo
    • Flush Floor Slide-Out w/Marine Grade Flooring
    • Exterior Accent Lighting
    • Dimmable Interior LED “Blade Lighting” (Living Area)
    • Heated & Enclosed Accessibelly
    • LED “Blade Lighting” Under Awning
    • 60K On-Demand Tankless Water Heater
    • Outside Shower
    • 5/8" Tongue & Groove Plywood Floor Decking
    • Tufflex™ PVC Roofing
    • Powder Coated I-Beam Frame
    • 3/8" Roof Decking (Walk-On)
    • Cambered Chassis
    • Nitrogen Filled Tires
    • 2" Wall Construction
    • 16" (or less) on Center
    • Aerodynamic Front Radius Profile
    • .040 Smooth Aluminum Front Cap
    • 5" Bowed Truss Roof Rafters
    • 2" x 3" Floor Joists 12" on Center
    • 13 Ply Cross Micro-Laminated Beam Header Above Slide-Out
    • Seamless Holding Tanks
    • Color Coded Water Lines
    • Platinum Package: Fiberglass Exterior, 200W Solar Panel w/30 AMP Controller (N/A 28DBUD)
    • Spare Tire & Carrier
    • 15,000 BTU A/C IPO Standard 13,500 BTU
    • 50 AMP Service w/Wire & Brace for 2nd A/C (Forced 28VIEW, 29VIEW & 32VERANDA)
    • 2nd 13.5k BTU Air Conditioner w/50 Amp Service
    • Power Stabilizer Jack
    • 200W Solar Panel w/30AMP Controller
    • Versa-Flex Table
    • PROP TV FOR DISPLAY ONLY; NOT INCLUDED